Соломянська площа Вокзальна Монастирського офіс 105 м2 (№ 14-101-201)
Ціна: 12 $ + комунальні

Адреса: Монастирського, Київ, Солом'янський, м. Вокзальна
Характеристики
| Ціна: | 12 $ + комунальні |
|---|---|
| № об'єкта: | 14-101-201 |
| Тип: | торгово-офісний центр |
| Площа: | 105 м2 |
| Поверх: | 4 / 4 |
| Додатково: | кондиціонер, парковка |
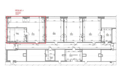
Опис
Офіс з сучасним ремонтом в БЦ, 106 м.кв. м.Вокзальна, Соломянка,, Бізнес-центр розташований у Солом`янському районі Києва 4 поверх, кабінетна система площею 105,8 м.кв, з урахуванням площ загального користування. 2 кабінета із великими вікнами та високою стелею. Сан вузол та кухня - на поверсі У нас в БЦ тепло! БЦ на Монастирського (Сурікова) 3А. Комерційні умови оренди: Ціна оренди - 12 дол/кв.метр + ПДВ та комунальні окремо. Переваги БЦ: розвинена інфраструктура; поряд метро Вокзальна та зупинки громадського транспорту; понад 200 паркомісць; на першому поверсі великий супермаркет 'Ультрамаркет'; два пасажирських ліфти виробництва компанії Otis; пожежна сигналізація; охорона 24/7; відеоспостереження; система опалення; великі вікна. Пропозиція без комісії для орендаря.











