Видовий мебльований офіс тераса Лукьянівка Січових Стрільців Без % (№ 1-499-190)
Ціна: 4 300 $

Адреса: Січових Стрільців, 82, Київ, Шевченківський, м. Лук'янівська
Характеристики
| Ціна: | 4 300 $ |
|---|---|
| № об'єкта: | 1-499-190 |
| Тип: | нежиле приміщення в житловому будинку |
| Площа: | 207 м2 |
| Поверх: | 17 / 18 |
| Додатково: | кондиціонер |
Опис
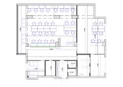
Оренда видового, мебльованого офісу з терасою в безпосередній близькості від станції метро 'Лукьянівська'. ЖК 'Андерсен', вул. Січових Стрільців. Офіс двох рівневий 17-й поверх - 207,4 м2, 18-й поверх - 39,4 м2. Дуже красивий краєвид + видова тераса бонусом. Нежитловий фонд. Висота стель - 3м. Офіс мебльований на 33 робочих місця. В офісі встановлено систему кондиціонування, рекуператор, елекролічильник, теплолічильник, лічильник на воду. Офіс ідеально підходить для ІТ компаній, дизайн-студій, архітекторів, юридичних та консалтингових компаній. Вартість оренди еквівалент 4300 у.о/міс. Пропозиція без комісії для орендаря.


























