Почайна Бандери офіс 905 м2 Без комісії (№ 1-499-812)
Ціна: 500 грн. + комунальні

Адреса: Бандери, Київ, Оболонський, м. Почайна
Характеристики
| Ціна: | 500 грн. + комунальні |
|---|---|
| № об'єкта: | 1-499-812 |
| Тип: | бізнес центр |
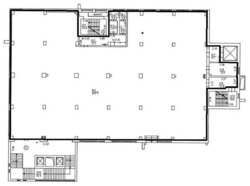
| Площа: | 905 м2 |
| Поверх: | 2 / 3 |
| Додатково: | кондиціонер, парковка |
Опис
Предлагается в аренду офисное помещение 905,00 кв.м. метро Почайна. Офис открытого типа. 2 этаж. С ремонтом. Оборудовано приточно-вытяжной системой вентиляции и кондиционирования, также стационарными кондиционерами. Телефон, интернет (оптоволоконный кабель), подключены все коммуникации, Круглосуточная охрана, видеонаблюдение внутри и по периметру. На территории есть большой охраняемый паркинг, бомбоубежище с отопление и интернетом. Своя котельная. Офисный центр выгодно расположен в оживленном районе Киева, а именно 5 минут от метро «Почайна» (Петровка), развитая инфраструктура. Арендная ставка – 500,00 грнu/кв.м., (в т.ч. НДС и эксплуатационные расходы). Коммунальные платежи – электричество, вода, отопление, согласно занимаемой площади. Пропозиція без комісії для орендаря.












